121 High Rock Court Unit 08
Statesville, NC 28677
$475,550 Under Contract - Show
Subdivision: Northlake

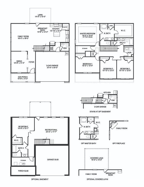
COMPLETE!!! Adams Homes presents a beautifully crafted 2-story home, situated on a spacious acre lot. This home boasts a fully finished basement complete with a recreation room, bathroom, and a playroom. Key features include: 9-foot ceilings throughout, recessed lighting, a cozy fireplace in the living area, stainless steel appliances, granite countertops with an open concept design. Step outside to a 16x14 covered deck overlooking the serene woods. The primary bedroom offers tray ceilings, an en suite bathroom featuring ceramic-tiled shower walls. Enjoy the community's amenities, including a pool, walking trail, and a private 10-acre lake. Standard closing costs are paid by the seller when using one of the builder's 4 lenders.

Request More Info:

Basic Information
MLS#: 4233024
Price: $475,550
Square Footage: 3,209
Bedrooms: 4
Bathrooms: 3 Full, 1 Half
Acreage: 1.08
Year Built: 2024
Elementary School: Third Creek
Middle School: Third Creek
High School: South Iredell
Details
Waterfront/water view: No
Parking: Driveway,Garage Door Opener,Garage Faces Front
HVAC: Heat Pump
HOA: $800 / Annually
Basement:   Bonus Room
Main level:   Family Room
Upper level:   Dining Room
Listing Courtesy Of: Adams Homes Realty-NC, Inc. - melindacorns@gmail.com

Follow us!


Terms of use/DMCA