3007 Wyntree Court
Matthews, NC 28104
$410,000 Active
Subdivision: Kerry Greens

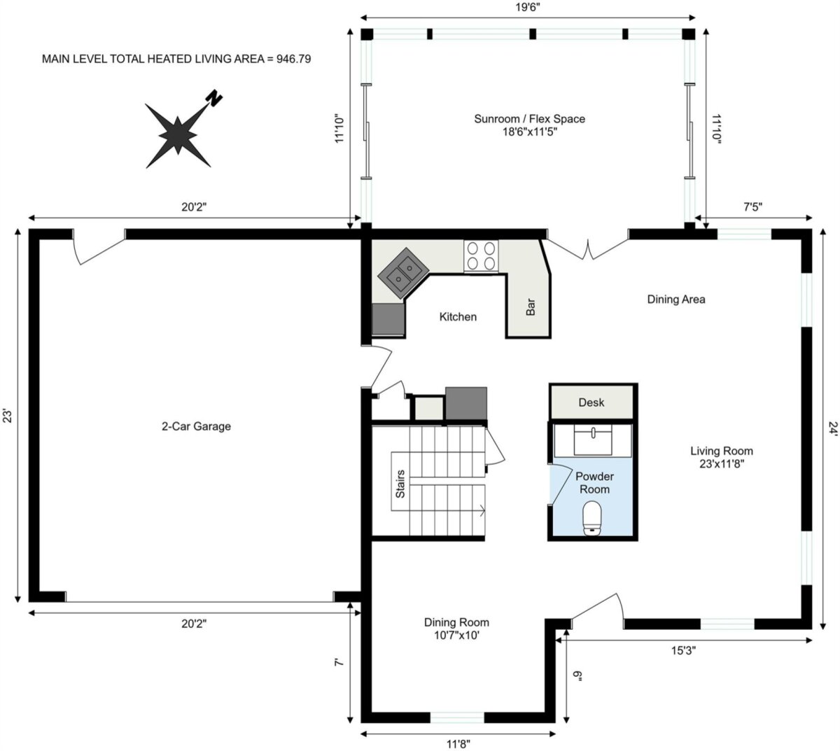
Beautifully located in the revitalizing Stallings/Matthews area, this 4-bedroom home offers exceptional value in the lower $400s. Enjoy quick access to I-485, Downtown Matthews, Sun Valley, the New Atrium Union West Hospital and Emergency Care Complex as well as an Easy Walk to Stallings Park. Neighborhood amenities include a Spacious Inground Pool & Recreation Area, making summers fun and effortless for one of the lowest HOA dues amounts in the Area. The smart, functional floor plan features Open Main Level Living, a spacious 230 sq ft sunroom/flex space, a large 4th bedroom/flex room, and a vaulted Ceiling Primary Bedroom with Ensuite Bath and a Deep Walk-In-Closet. Outdoor living shines with a pergola-covered patio, fenced backyard designed for play, pets, and outdoor gatherings, and a freshly painted 14×20 wired storage building perfect for a workshop, hobby space, or extra storage. Additional highlights include a covered rocking-chair front porch, natural-stone landscape beds, architectural-shingled roof, surround sound in the living room, butcher-block kitchen counters, upstairs laundry, updated lighting, and large 2-car garage with rear access to backyard. A fantastic opportunity in a high-growth location. Welcome Home!

Request More Info:

Basic Information
MLS#: 4328568
Price: $410,000
Square Footage: 1,989
Bedrooms: 4
Bathrooms: 2 Full, 1 Half
Acreage: 0.23
Year Built: 1998
Elementary School: Indian Trail
Middle School: Sun Valley
High School: Sun Valley
Details
Waterfront/water view: No
Parking: Attached Garage,Garage Door Opener,Garage Faces Front,Keypad Entry
HVAC: Central,Forced Air,Natural Gas
Exterior Features: Rainwater Catchment
HOA: $100 / Quarterly
Main level:   Kitchen
Upper level:   Bedroom(s)
Virtual Tour: Click here
Listing Courtesy Of: 1221 Real Estate LLC - remattnc@gmail.com

Follow us!


Terms of use/DMCA